Original size 1240x1750

Альбом чертежей учебного кластера

PROTECT STATUS: not protected

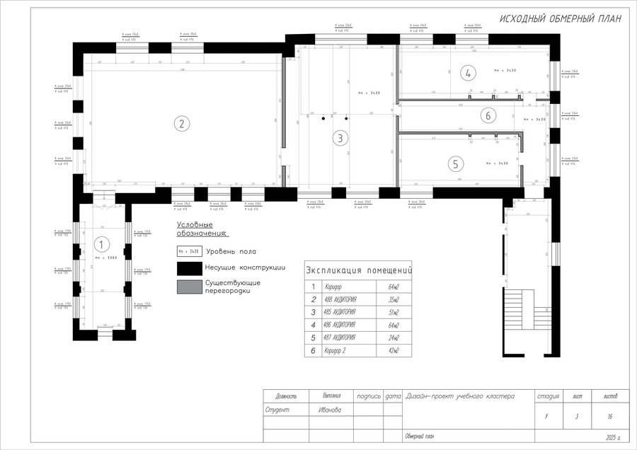
Цель данного проекта — создание чертежей для дизайн-проекта учебного кластера. В работе представлены подробные чертежи до перепланировки и после нее с уже готовым планировочным решением, расстановкой мебели и ее спецификацией.

big
Original size 2482x1755
big
Original size 2482x1755
big
Original size 2482x1755
Original size 2482x1755
Original size 2482x1755
Original size 2482x1755
Original size 2482x1755
Original size 2482x1755
Original size 2482x1755
Original size 2482x1755
Original size 2482x1755
Original size 2482x1755
Original size 2482x1755
Original size 2482x1755
Original size 2482x1755
Original size 2482x1755