
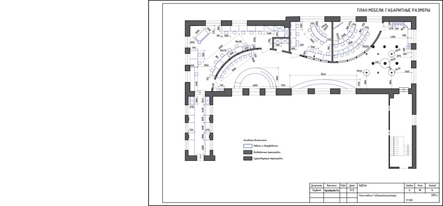
Проект представляет собой комплект чертежей, выполненных в программе AutoCAD, и визуализации учебного кластера, концепция которого была разработанна ранее. Материалы демонстрируют планировочное решение и конструктивные особенности проекта




Чертежи мебели