
Концепция проекта молодежного пространства «Wave» основана на образе волны как символа динамичного обмена идеями и творческой энергии. Пространство, расположенное в историческом здании Никольских рядов, решено как современный многофункциональный коворкинг-холл для молодежи. В проекте представлен альбом учебных чертежей, включающий обмерный план, план демонтажа, возводимых перегородок и иные планы по работе с пространством.

Ведомость рабочих чертежей

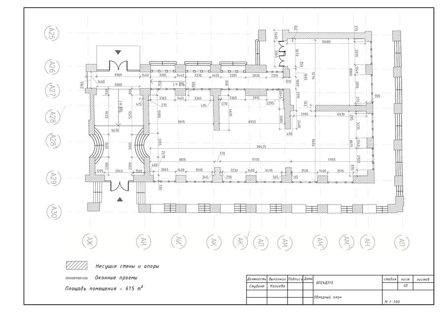
Обмерный план

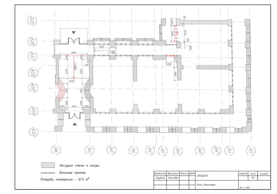
План демонтажа
План возводимых перегородок
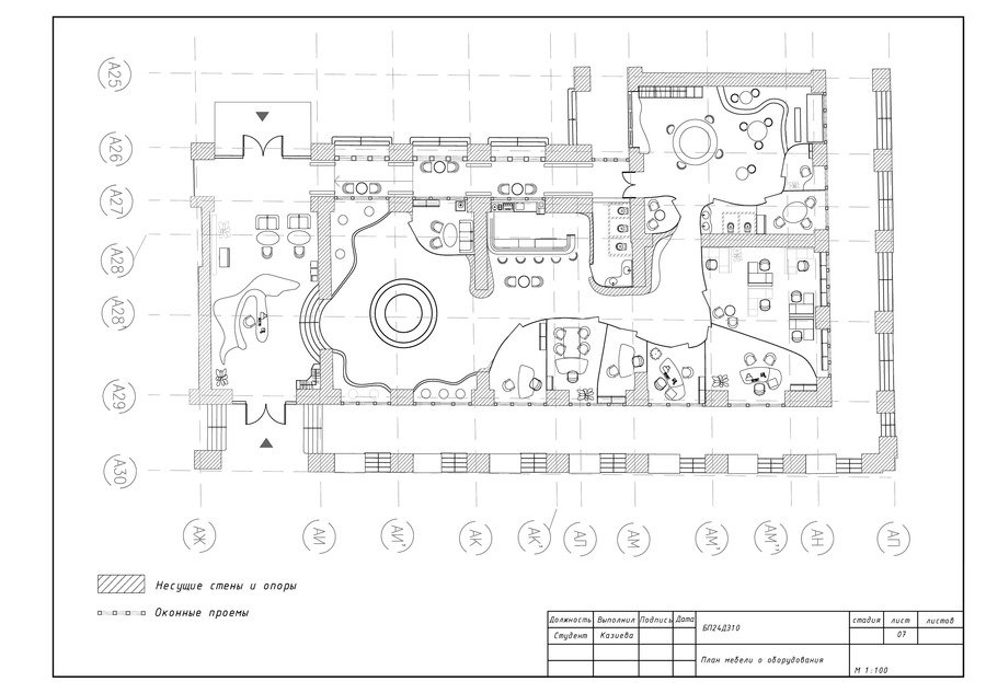
Планировочная структура построена по принципу плавных, «накатывающих» друг на друга зон: гибкой коммуникационной площадки, открытой зоны коворкинга с рабочими местами различного типа и интегрированной демонстрационной зоной-шоурумом.
План функционального зонирования
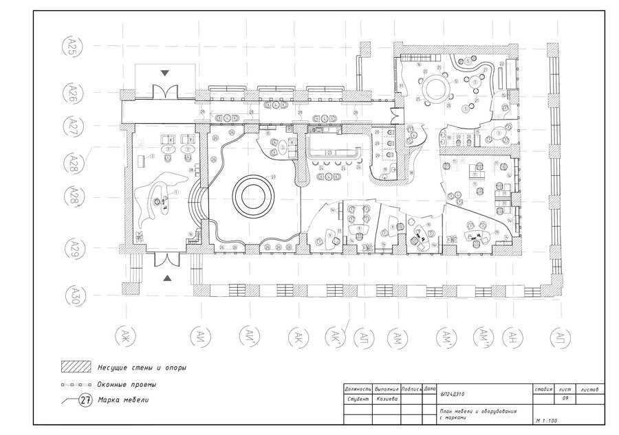
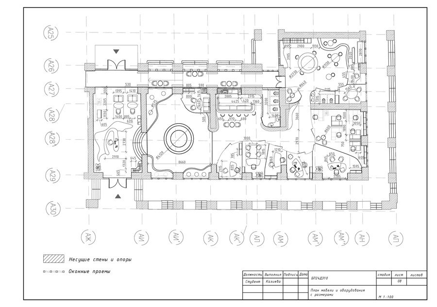
Планы с меблировкой
Спецификация мебели и оборудования
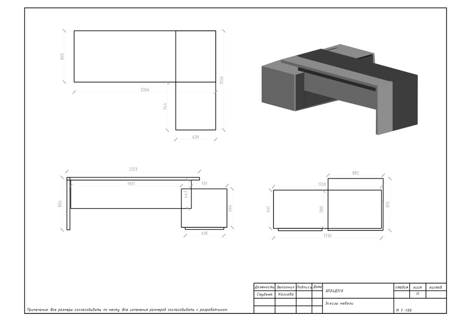
Чертежи мебели
Визуализации мебели в интерьере