
Работа представляет собой альбом-чертежей дизайн-проекта учебного кластера, включающий архитектурные планы, схемы зонирования, визуализации интерьера и технические решения, направленные на создание современной образовательной среды.



Спецификация
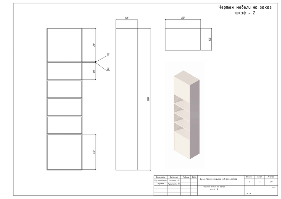
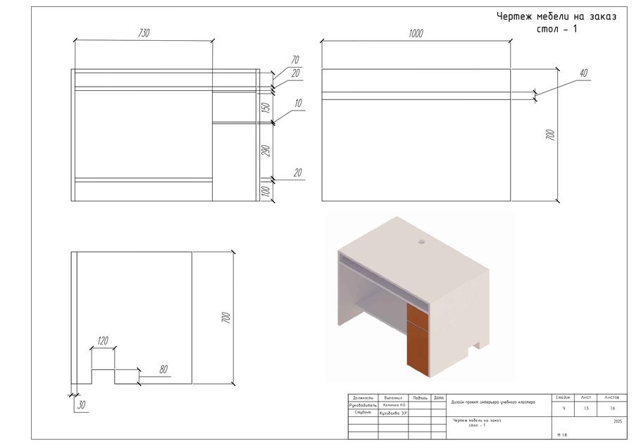
Чертежи мебели под заказ
Визуализация