Original size 1024x1536

Альбом чертежей к проекту учебного кластера

PROTECT STATUS: not protected

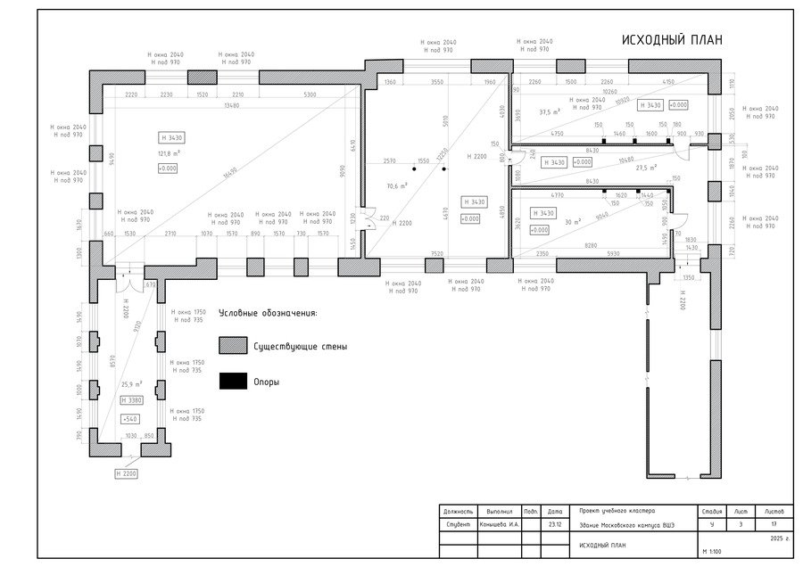
Проект включает серию чертежей интерьера учебного кластера школы дизайна НИУ ВШЭ в Москве. Цель — создание современного и функционального пространства для учебного процесса, включая зоны для лекций, групповых занятий и индивидуальной работы.

big
Original size 3500x2474
big
Original size 3500x2474
big
Original size 3500x2474
Original size 3500x2474
Original size 3500x2474
Original size 3500x2474
Original size 3500x2474
Original size 3500x2474
Original size 3500x2474
Original size 3500x2474
Original size 3500x2474
Original size 3500x2474
Original size 3500x2474
Original size 3500x2474
Original size 3500x2474
Original size 3500x2474
Original size 3500x2474