
Проект квартиры создан для семьи с ребёнком, которая много времени проводит дома, любит путешествия, книги и спокойные совместные вечера. Это дом для жизни в ритме города — с вниманием и уважением к архитектуре сталинского периода, где исторические элементы вступают в диалог с современными функциональными решениями, создавая ощущение устойчивости, комфорта и уюта.
Идея проекта — сохранить характер дома и адаптировать его под современную семейную жизнь.

Об объекте
Адрес: ул. Киевская, д. 20 Год постройки: 1956
Это кирпичный дом эпохи «сталинских» домов, но уже на пороге упрощений и перехода к более скромной архитектуре. Рядом — метро, Киевский вокзал, Москва-река, Парк Победы, Бородинская панорама, Триумфальная Арка, Москва-Сити, много зелени, чистый воздух. В этих местах чувствуется энергия столицы, сочетание «старой Москвы» и модернизации.
Вдохновением стали академические дома Москвы, пасмурный городской свет, тяжёлая латунь светильников в метро, лепнина и витражные окна — как символы «московскости», времени, глубины и устойчивости.
Доска настроения
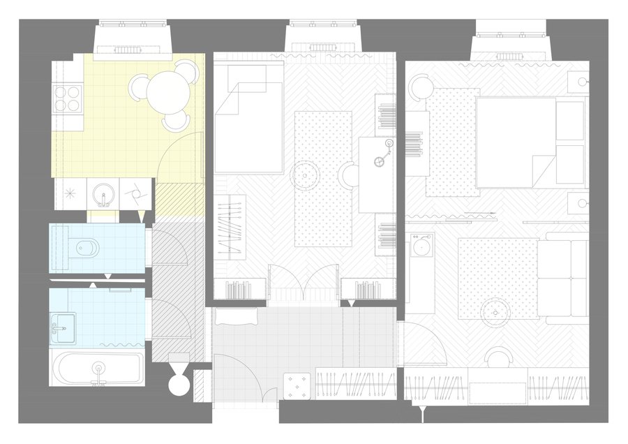
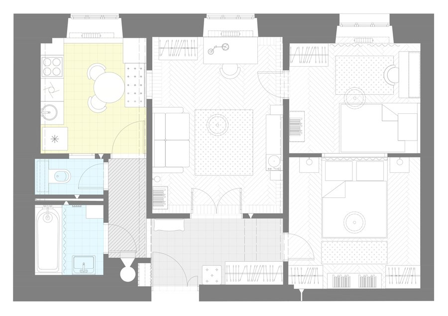
В ходе работы над проектом, на основе обмерного плана и технического задания заказчиков, были разработаны несколько вариантов планировочных решений, отражающих различные сценарии жизни в квартире.
Обмерный план помещения
Итоговое планировочное решение
Гостиная следует анфиладной логике — остальные пространства плавно раскрываются друг за другом.
Кухня спроектирована с учётом максимального количества мест хранения, а также столешницы у окна для быстрых приёмов пищи.
Спальня и детская изолированы от гостиной, но связаны внутренним окном, создающим визуальный диалог и дополнительный источник естественного света.
Совмещённый санузел дополнен встроенными шкафами и выделенной постирочной зоной.
Основной принцип планировочного решения, взятого за основу проекта — симметрия и выстраивание по осям
Коллажи стали промежуточным этапом проектирования — способом собрать визуальный образ интерьера и найти баланс между историческим контекстом дома и современными решениями.
Коллаж для визуализации прихожей
3D-визуализации стали следующим этапом проектирования, на котором были уточнены пропорции, сценарии освещения, сочетания материалов и взаимодействие винтажных и современных предметов.
Прихожая формирует первое впечатление о квартире — сдержанное, камерное и выстроенное в едином ритме с остальным пространством


Ключевым акцентом прихожей стало старинное зеркало, доставшееся хозяевам вместе с квартирой и задающее диалог с её историей
Анфиладная планировка гостиной позволяет сохранить свет, перспективу и связь между помещениями, создавая ощущение пространства и гибкости сценариев жизни.
Гостиная объединяет винтаж и современность, а восстановленные паркет и лепной потолочный карниз сохраняют подлинный характер сталинского дома


Внешняя проводка становится частью интерьера: функциональное решение, продиктованное уважением к истории дома, превращается в выразительный графический элемент
Кухня — естественное продолжение общего пространства квартиры — рабочая, но живая зона для повседневных семейных сценариев
Столешница у окна стала местом для быстрых завтраков и коротких пауз в течение дня, а зеркальные откосы усиливают свет и визуально расширяют оконный проём


Спальня становится отдельным, спокойным миром внутри квартиры.
Внутреннее окно — это и метафорическая связь поколений, и источник мягкого света для уединённой спальни, скрытой от общего ритма квартиры


Детская, напротив, становится пространством роста и движения — светлым, гибким и готовым меняться вместе с ребёнком.
Выполненные на заказ книжный шкаф и шкаф для одежды из бука становятся тихим фоном детской — тёплым, тактильным и рассчитанным на долгую жизнь


Санузел спроектирован как функциональное пространство с продуманной системой хранения для повседневных бытовых нужд.


Винтажная тумба с характером прошлого соседствует с лаконичным современным зеркалом, а латунные смесители мягко объединяют эти два времени в одном пространстве
Проект сопровождается комплектом рабочих чертежей и разверток, а также мебелью, разработанной специально для этого интерьера.
*Для ознакомления с ведомостью проекта перейдите по ссылке