
Концепция
BLOSSOM & SCENTS — это мультифункциональное молодежное пространство, где вдохновение встречается с практикой. Оно объединяет креативные мастер-классы по флористике и парфюмерии, комфортный коворкинг для работы и учебы, а также уютный coffee-point для общения и перезагрузки. Это место для тех, кто ищет гармонию, самовыражение и новые навыки в атмосфере творчества и природной эстетики. Для гармоничной работы в пространстве содержится офис, в котором будут решаться вопросы, связанные с молодежным пространством. Прострнастов станет точкой притяжения для молодых людей, ценящих ручной труд, природную эстетику и саморазвитие, предлагая им не просто услуги, а цельный опыт, способствующий раскрытию их потенциала и созданию собственного уникального стиля жизни.
Ситуационный план

Это старинный и особенный уголок Москвы, где переплетаются богатая история, красивая архитектура и живая студенческая жизнь. Главная достопримечательность здесь — Усадьба Муравьевых-Апостолов, редкая деревянная усадьба, построенная после пожара 1812 года и связанная с декабристами. Сама улица раньше была важной дорогой и названа в честь царских пекарей; с XVII–XVIII веков здесь стали строить свои дома знатные семьи. Сегодня на Старой Басманной можно увидеть много красивых зданий разных стилей (от классики до модерна), которые чудом уцелели после пожаров и войн. Поэтому район — как живой музей, где старая история мирно уживается с современной студенческой энергией, создавая неповторимый облик.
Аналитика и техническое задание
- ЦЕЛЕВАЯ АУДИТОРИЯ
Молодые люди в возрасте от 18 до 35 лет: • Студенты и фрилансеры • Творческие личности • Любители эстетики и осознанного потребления
- ОБЯЗАТЕЛЬНЫЕ ЗОНЫ
• ресепшн • кабинет директора • переговорная • серверная • архив • бухгалтерия • торговая площадь
- НЕОБХОДИМЫЕ ЗОНЫ
• зона коворкинга • coffee-point • помещение для проведения мастер-классов по флористике • помещение для проведения мастер-классов по парфюмерии
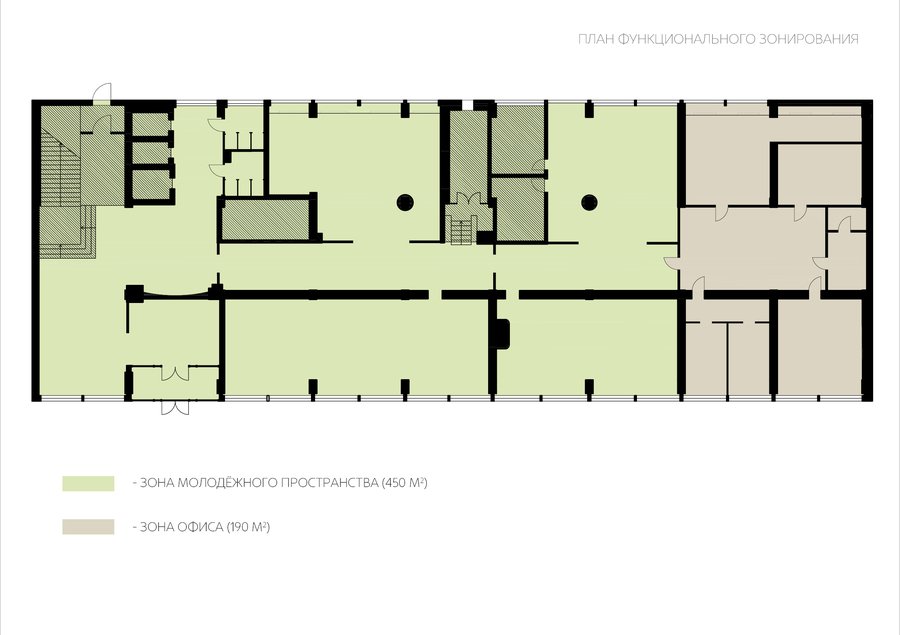
Исходный план/Зонирование/Планировочное решение
Визуализации
Зона ресепшн
Зона ожидания
Арт-стена для фотографий
COFFEE-POINT
Зона флористического мастер-класса
Зона парфюмерного мастер-класса
Рабочие места
Кабинет директора
Стойка ресепшн