
Концепция
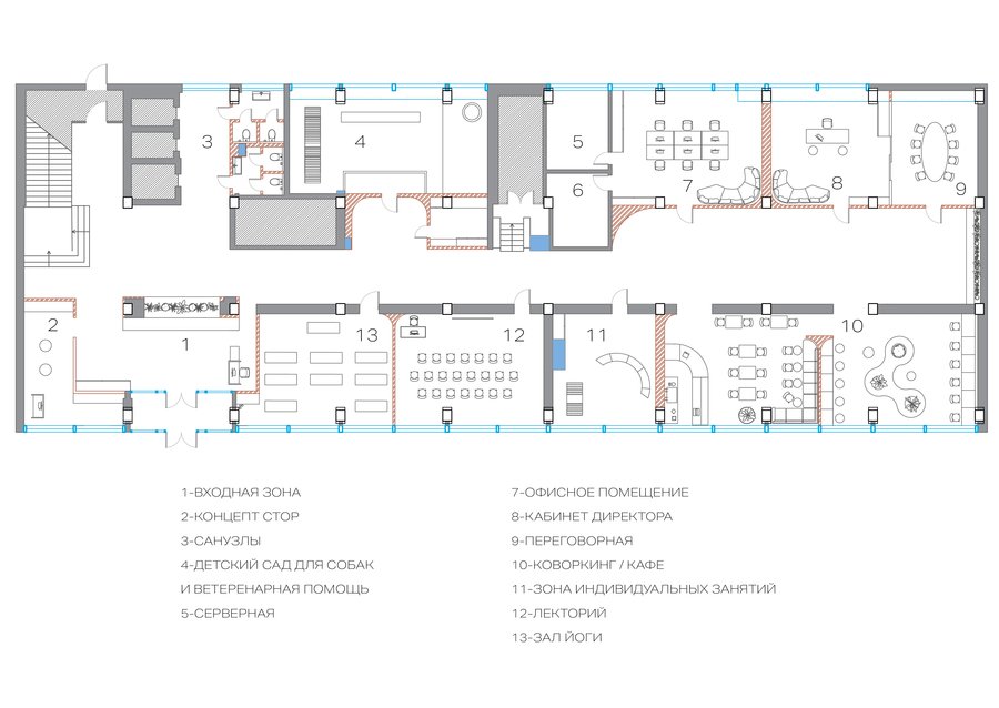
Bark & Tail — это современное городское пространство, созданное для людей и их собак. Здесь объединены отдых, обучение и забота — всё, чтобы и питомцам, и хозяевам, и даже гостям без собак было по-настоящему комфортно. Можно прийти на йогу с щенками, посетить лекции с кинологами, ветеринарами и зоопсихологами, а также пройти индивидуальные занятия с собаками, направленные на развитие послушания. На территории работает кофейня, где можно перекусить.
Для питомцев предусмотрен собачий детский сад — безопасное и просторное место с интерактивными элементами, игрушками и препятствиями. Пока питомец занят, хозяин может поработать в комфортном коворкинге. Также в Bark & Tail есть ветеринарная зона и груминг-салон для ухода и экспресс-помощи, а в концепт-сторе представлена уникальная продукция бренда.
Исходный план

Планировочное решение

Итоговый результат
Входная зона
Входная зона
Детский сад для собак
Детский сад для собак
Кабинет директора
Коворкинг
Клаузура стойки ресепшн