
КОНЦЕПЦИЯ
Сдвиг реальности — это креативное пространство, где классическая архитектура становится основой для сюрреалистического высказывания. Интерьер провоцирует сдвиг восприятия, предлагая альтернативный взгляд на привычные формы и функции. Акцент делается на поиске аутентичности через нарушение шаблонов.

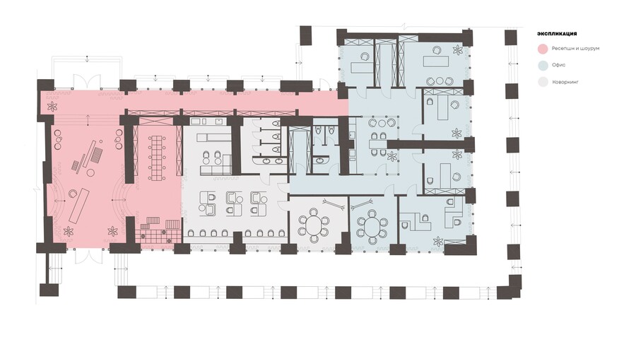
ПЛАНИРОВОЧНОЕ РЕШЕНИЕ
Функциональное зонирование и план мебели с экспликацией

Взрыв-схема
ВИЗУАЛИЗАЦИИ
Ресепшн и шоурум
Зона кофепоинта
Шоурум


Ресепшн и коворкинг
Кабинет директора
Серия плакатов на тему проекта