
Эта квартира — не помещение из бетона и стекла, а место, где владельцы наполняются и созидают энергию уюта и гармонии в каждом уголке. Место, где личное пространство — плавно перетекает в общее, а дизайн сочетает в себе простоту и практичность, насыщенность и спокойствие.



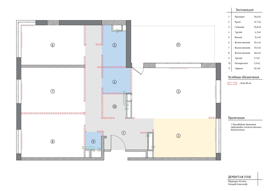
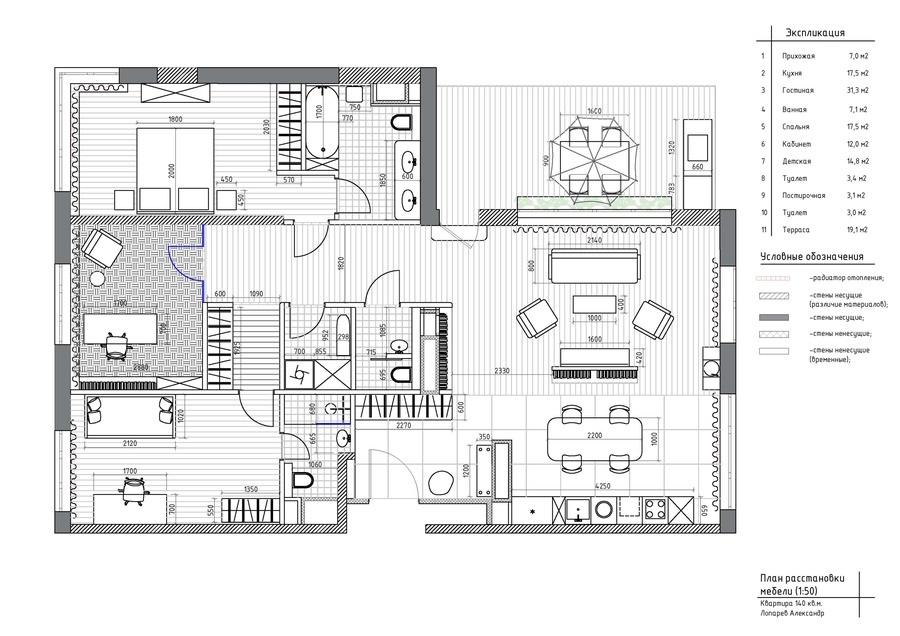
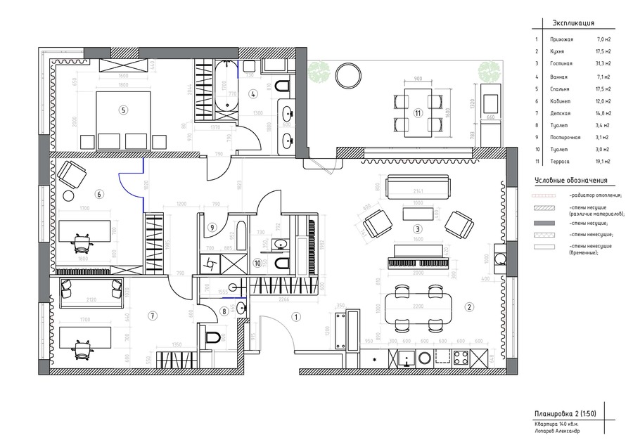
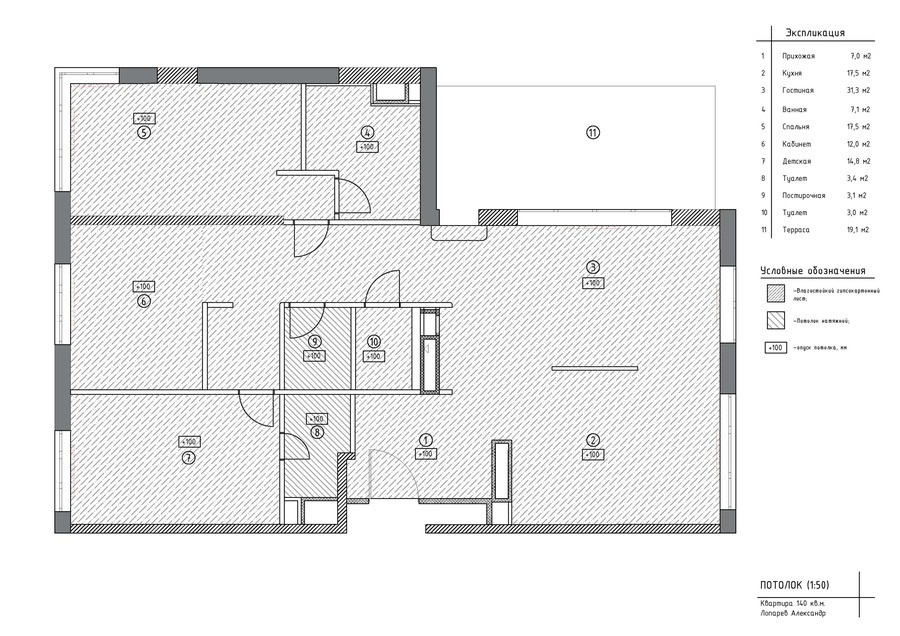
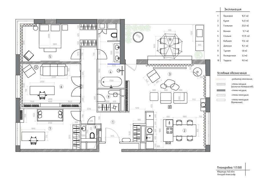
Были рассмотрены различные варианты зонирования и организации пространства, сохраняя расположение основных зон. По итогу, этой части проектирования, был выбран второй вариант планировки, так как он сочетает в себе правильную эргономику помещения.
В данном проекте было решено создать дизайн с объединением стилей 70-80х годов и джапанди. Натуральные материалы, насыщенные, но не кричащие цвета, интересные структуры, лаконичный стиль мебели и металлических поверхностей объединяются с легкостью и прочностью необычных деревянных шкафов и уютом светлой отделки стен и напольного покрытия. Смесь утонченного, легкого и строгого фактурного освещения. В дизайне было отдано предпочтение таким материалам как: керамогранит, листы нержавеющей стали, паркетная доска, плитка ручной работы, керамическая плитка, лён. Все это даёт понять, что в квартире живут люди, ценящие стиль и комфорт.