
«За сценой» — это пространство для репетиций, театральных читок, мастер-классов по актерскому мастерству и неформальных встреч деятелей искусства.
стиль пространства:
драматичный стиль, слегка готичная атмосфера, контрастные цвета и отсылка к чему-то винтажному и загадочному

эскиз интерьера
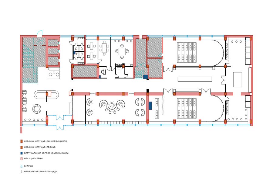
планы
1 — исходный план 2 — план расстановки мебели 3 — план функционального зонирования
визуализации
входная зона // кофейня


коридор // малый зал


санузел
ресепшн
чертеж с габаритами
визуализация в интерьере